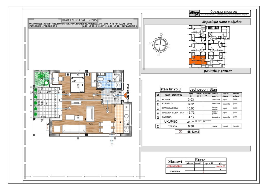
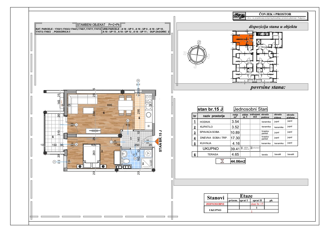
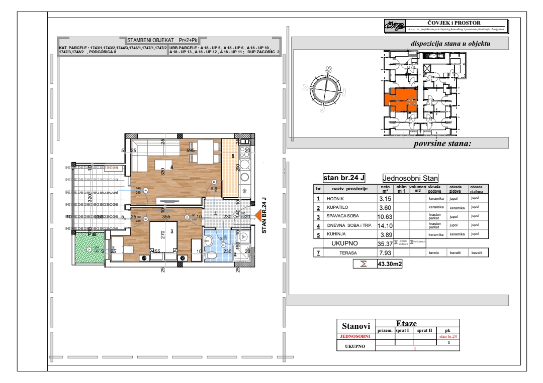
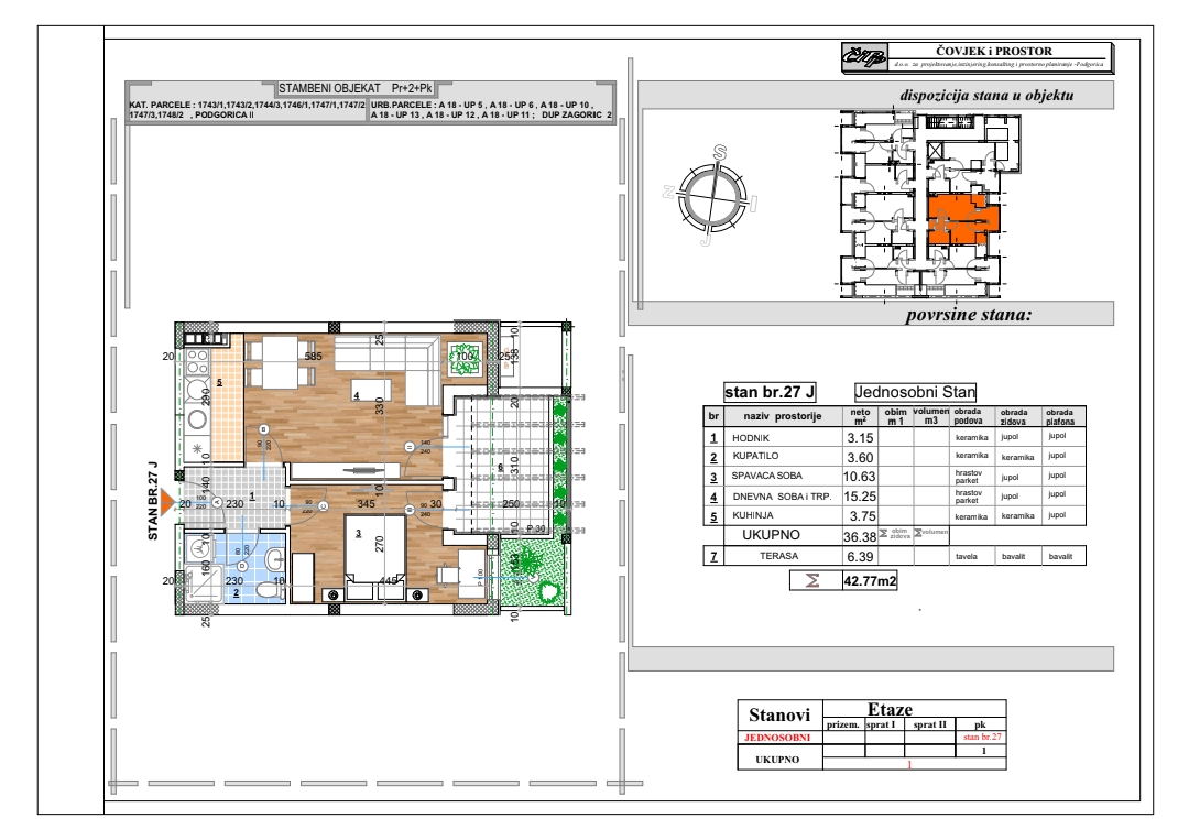
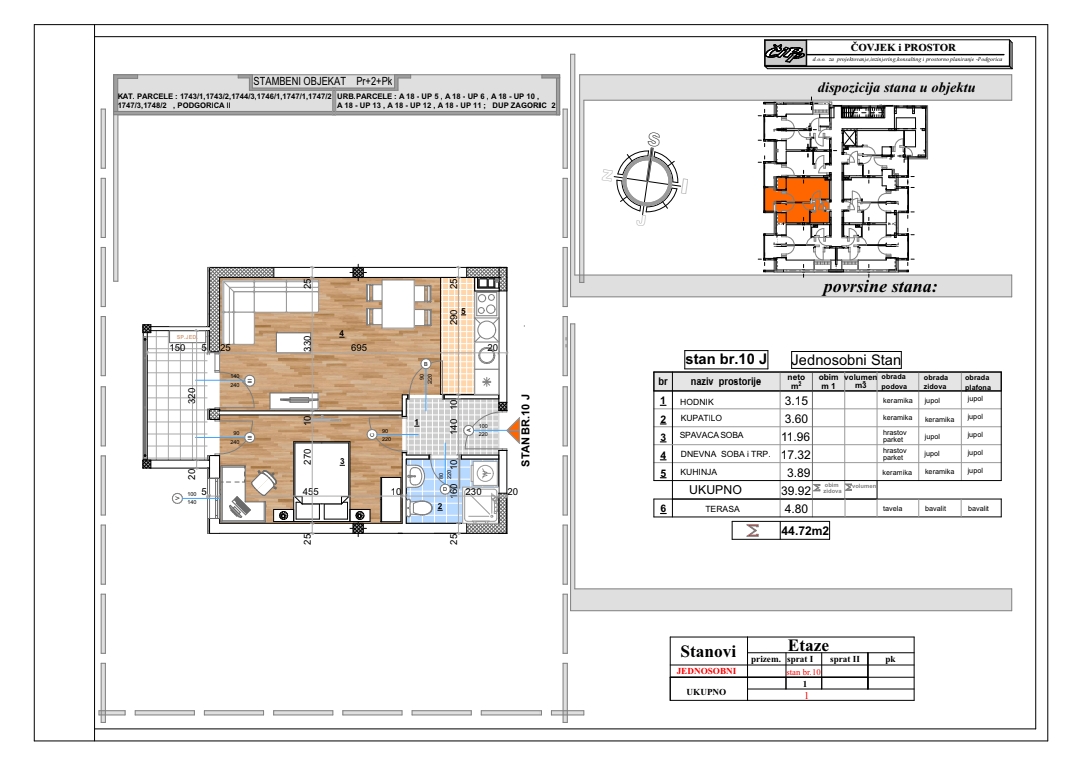
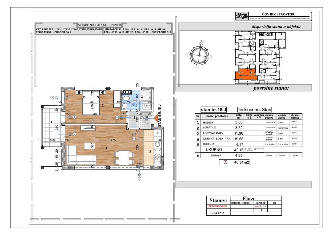
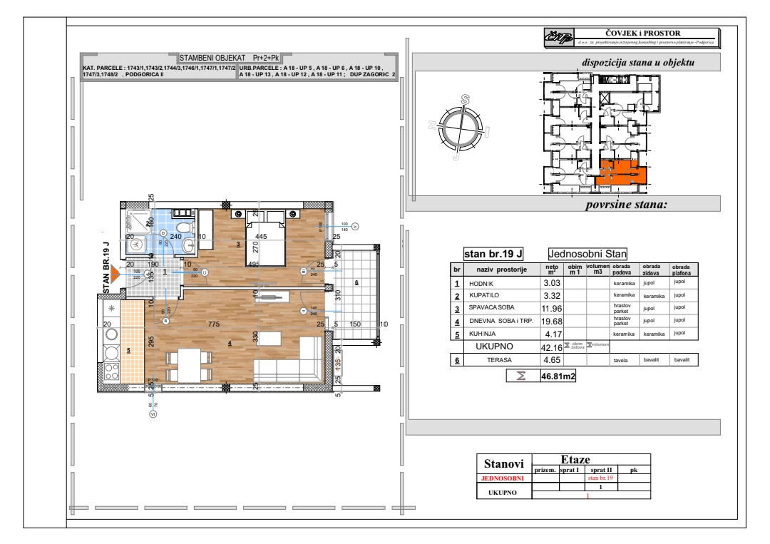
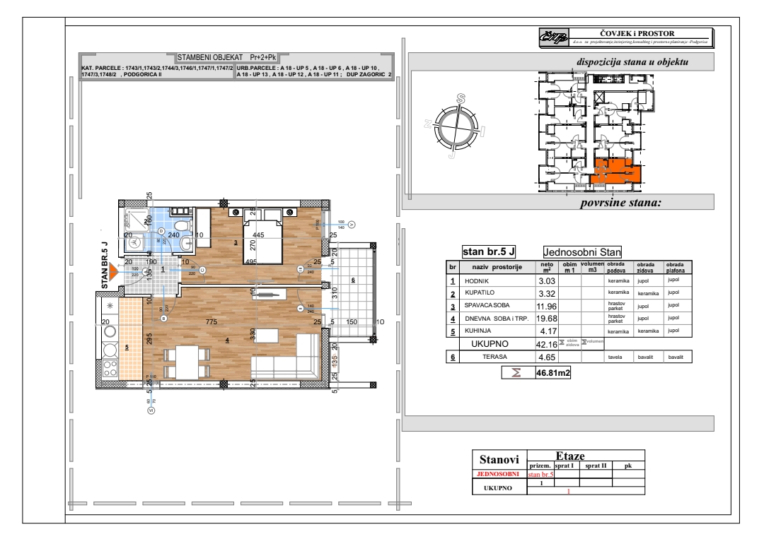
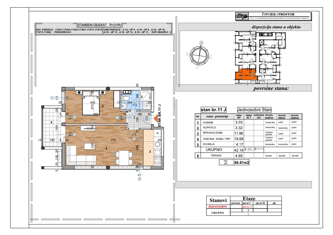
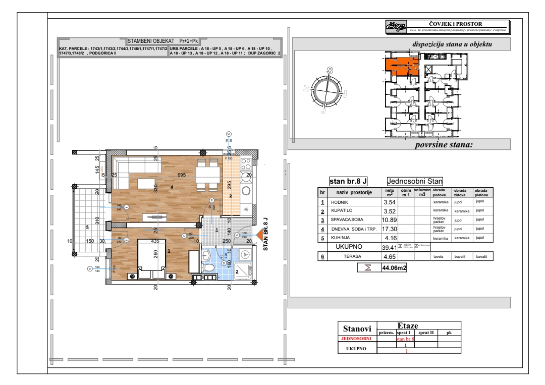
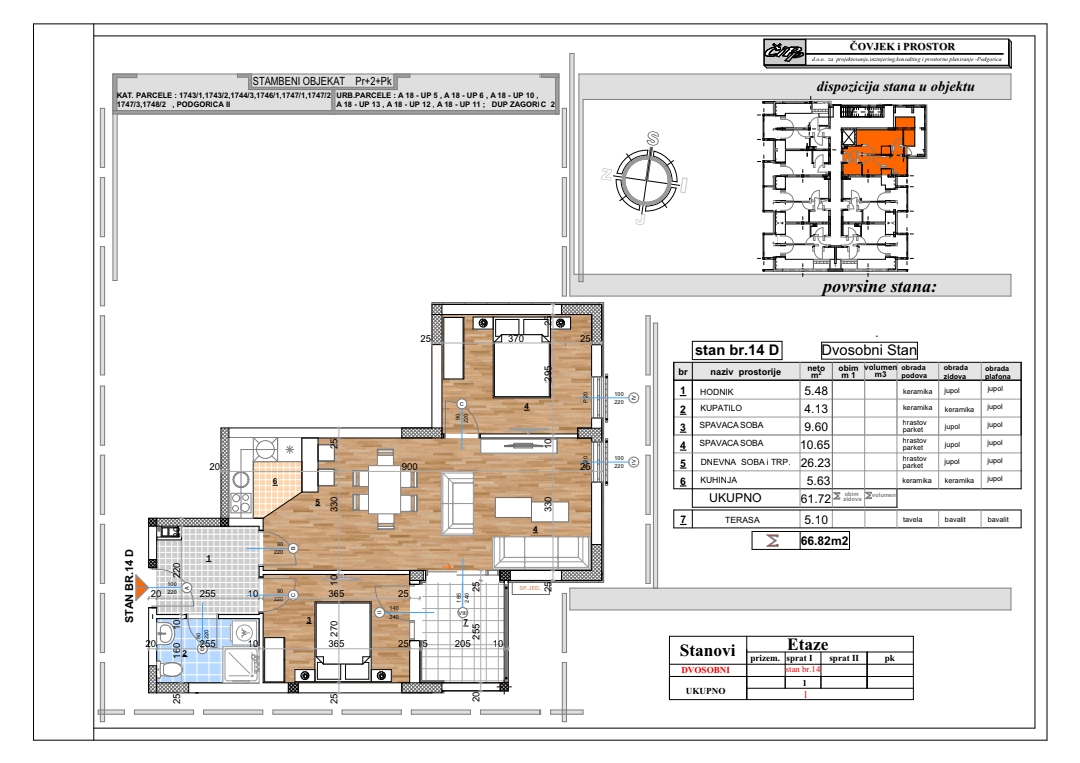
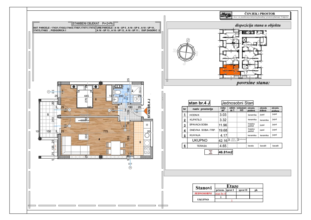
Zagorič UP 5,6..
Lokacija objekta: Ulica Ludviga Kube, u blizini Osnovne škole Branko Božović
https://maps.app.goo.gl/pmXgMcHnwG9LAA6r6
Završetak radova JUN 2025, Ponudu stanova možete pogledati ispod teksta.
Kontakt 069 355 244
Zagorič je posmatrajući prostorno i prema broju stanovnika najveće naselje u Podgorici. Prostire se od Vezirovog Mosta sa zapadne strane, brda Gorice sa južne strane i pruge Beograd-Bar sa istočne strane. Ime je dobilo po svom položaju (iza Gorice). Zgrada se nalazi u mirnom okruženju sa puno zelenih površina. U blizini se nalazi park-šuma i trim staza sa brojnim sadržajima za rekreaciju i sport. Saobraćajna i urbanistička infrastruktura i blizina zdravstvenih i obrazovnih ustanova obezbjeđuju komfor porodičnom životu.


































